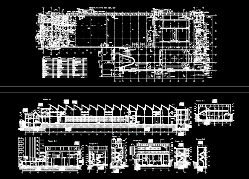
Реконструкция студенческого общежития «Дом Коммуна» МИСиС

Реконструкция студенческого общежития «Дом Коммуна» МИСиС

Заказчик: ГОУ ВПО «Московский государственный институт стали и сплавов (технологический университет)»
Общая площадь: 26 000 м2
Стадия проектирования: проект, рабочая документация

Реконструкция студенческого общежития «Дом Коммуна» МИСиС
Реконструкция студенческого общежития «Дом Коммуна» МИСиС
Реконструкция студенческого общежития «Дом Коммуна» МИСиС
Реконструкция студенческого общежития «Дом Коммуна» МИСиС
Реконструкция студенческого общежития «Дом Коммуна» МИСиС